Напольная ленточная пила STL-390 F CE FIX TABLE
Описание
Ленточная пила для мясной и рыбной промышленности. Проста в эксплуатации.
· Дизайн облегчает интеграцию в различные линии процесса резки.
· Прочная конструкция из нержавеющей стали 18/10.
· Шкивы из нержавеющей стали с двойным клапаном.
· Автоматический процесс контроля натяжения.
· Предохранительное устройство для остановки бегущего полотна за 4 секунды.
· Выключатель с кнопкой аварийной остановки, IP65.
· Предохранительное устройство при открытии двери.
· Изготовление левосторонней и правосторонней пилы.
· Легкая очистка под давлением воды.
· Цельная конструкция корпуса, облегчающая очистку на единой платформе.
· Съемные очистители полотна, что облегчает очистку, без использования инструментов.
· Скребки для очистки шкива в процессе резки.
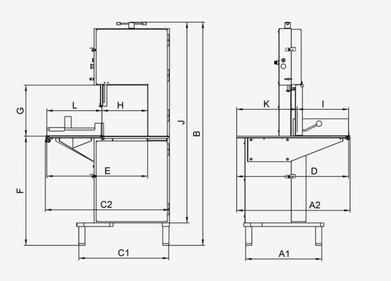
| Модель | STL-390 |
|---|---|
| Ø шкива | 360 |
| A1 | 625 |
| A2 | 845 |
| B | 1780 |
| C1 | 700 |
| C2 | 930 |
| D | 830 |
| E | 739 |
| F | 900 |
| G | 400 |
| H | 335 |
| I | 357 |
| J | 1595 |
| K | 473 |
| L | 404 |
| КГ | 190 |
| CV. III | 4 |
| ПОЛОТНО | 2.910 |




